CASA DLP

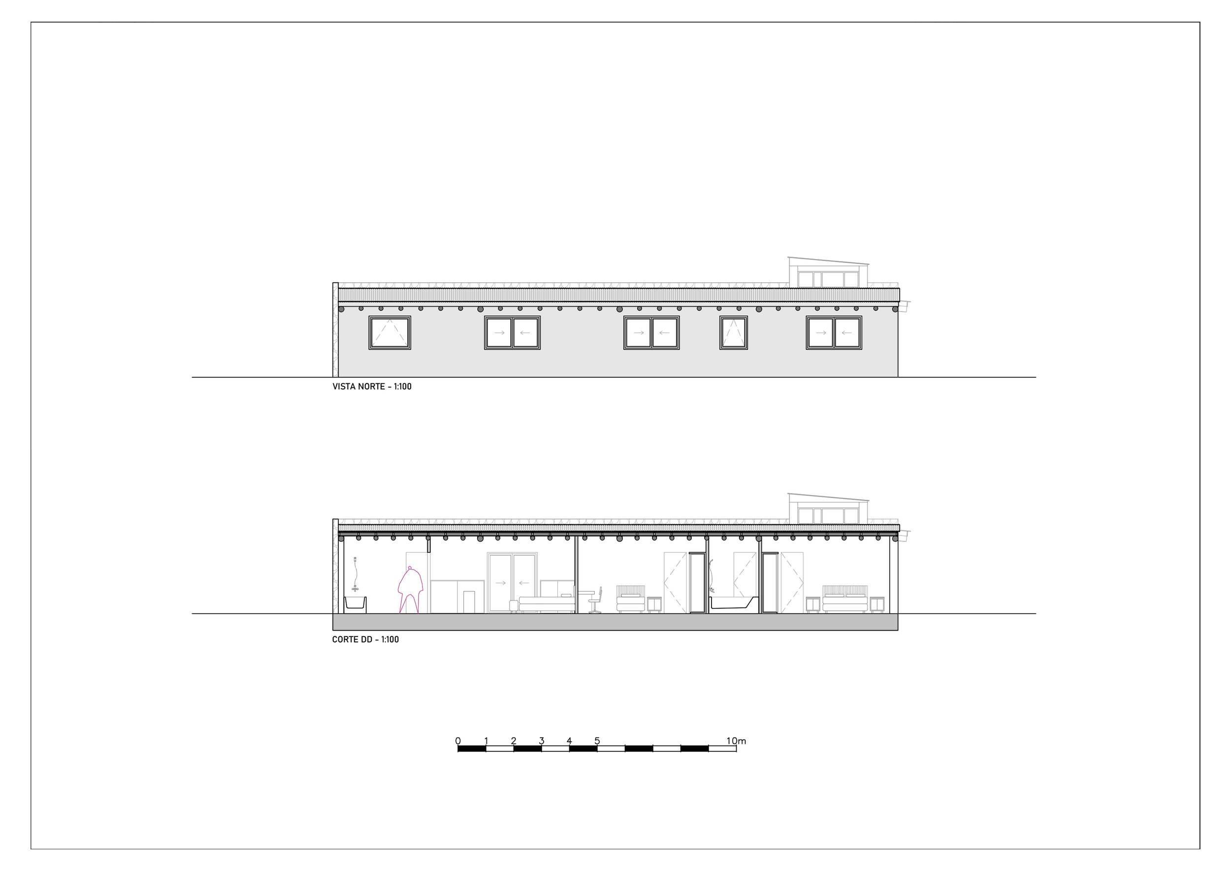
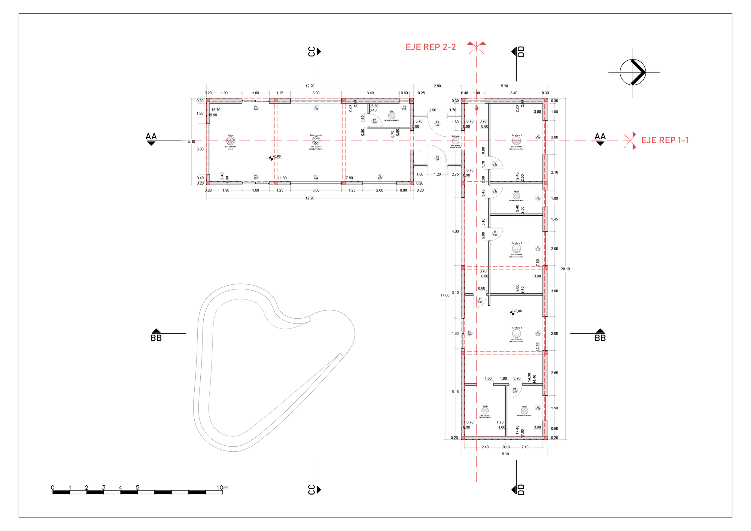
Ubicada en La Cumbre, Córdoba, se concibe a partir de un sistema mixto que combina materiales locales y técnicas tradicionales. La estructura principal está conformada por postes de eucalipto, que garantizan estabilidad y permiten un montaje eficiente. Las paredes se ejecutan en ladrillo de adobe, aportando inercia térmica y optimizando el confort interior frente a las variaciones climáticas de la región serrana.
En las fachadas más expuestas a los vientos, se incorpora un revestimiento de piedra que protege la envolvente frente a la erosión y la humedad, al tiempo que refuerza la solidez de la construcción. Este recurso resulta particularmente eficaz en orientaciones que no reciben sol directo, donde el adobe no puede aprovechar al máximo su capacidad de absorber y devolver calor. Así, mientras el muro norte de adobe capta la energía solar durante el día y la libera lentamente al interior, las caras revestidas en piedra resisten los embates del viento y estabilizan la temperatura sin sobreenfriarse. El conjunto logra un equilibrio entre masa térmica, aislamiento natural y durabilidad, con una expresión estética que recupera el carácter autóctono de la arquitectura serrana.